Bondgate, Pontefract
£600,000
Property Features
- Investor or Business Purchase Opportunity (Class C2 Use)
- HMO Buy to Let
- Business or Residential Purchase
- Six Room Guest House and Three Bedroom Detached Accomodation
- 5 Star Rating and Gold Award
- Highly Rated Online Reviews
- High Turnover Year on Year
- Opportunity for Further Business Expansion
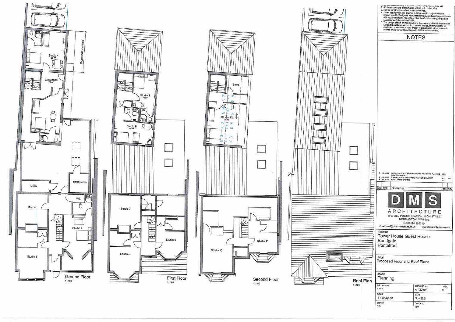
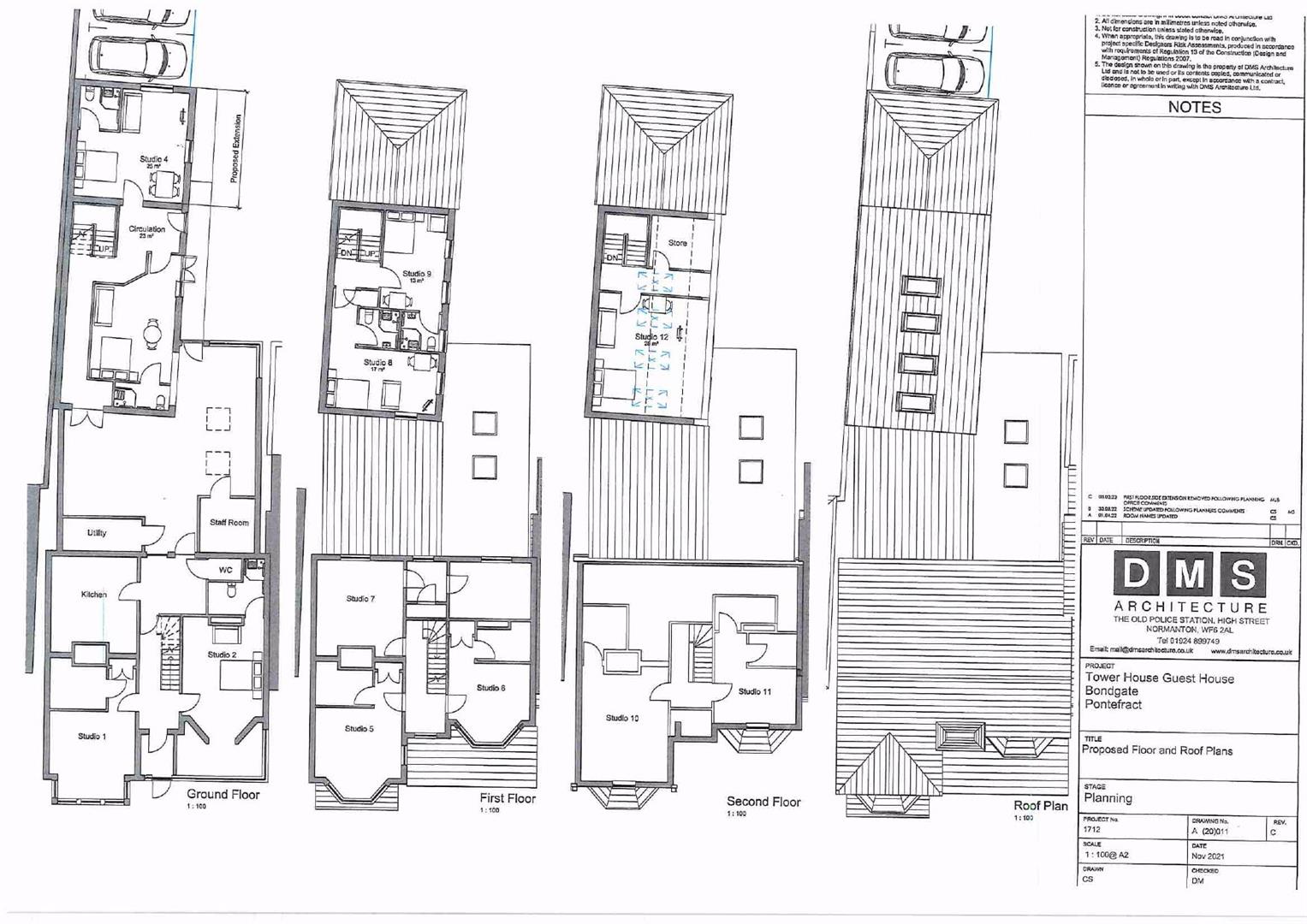
- Planning Passed to Extend and Convert to 12 Studios
- Pre Purchase Rental Options Available (Commitment to Purchase Required)
Property Summary
**RESIDENTIAL or BUSINESS or HMO Rental Opportunities**
**Class C2 Use** (Including Residential Care Home, Nursing Home, Boarding Schools, Training Centres, Hotels, Guest House)
Enfields are proud to offer an exceptional business
opportunity in the form of this expansive and multifunctional freehold property
with Class C2 use, currently operating as a successful guest house.
Rarely does a commercial property of this scale, flexibility, and location
become available, making it ideal for investors, hospitality operators, care
providers, or training organisations seeking a ready-made venture with strong
development potential.
The main building is a substantial three storey Victorian
premises situated on Bondgate, one of Pontefract's key arterial routes. The
current layout includes six En- suite guest bedrooms, reception and office
area, dining room with capacity for 12 covers, a fully equipped commercial
kitchen, and laundry facilities, providing a turnkey solution for continued use
in the hospitality or care sector.
To the rear, a modern two storey building currently used as
private accommodation offers further business flexibility. This space includes
a lounge, kitchen, WC, bathroom, master bedroom with en suite, two additional
bedrooms, and a dressing room. Planning permission is in place to extend and
convert into additional studio units, increasing capacity and revenue
potential. Full floorplans are available.
The site benefits from a large rear car park and on street
parking to the front, ensuring easy access for customers, clients, or staff.
Its location is well served by public transport and just over half a mile from
Pontefract Monkhill train station, with excellent road connections to
Wakefield, Leeds, Doncaster, York, London and the wider motorway network.
Pontefract is a popular and historic market town with a
strong tourism economy, well known attractions, and a growing demand for short
stay accommodation and flexible rental solutions. The town is hom
**Class C2 Use** (Including Residential Care Home, Nursing Home, Boarding Schools, Training Centres, Hotels, Guest House)
Enfields are proud to offer an exceptional business
opportunity in the form of this expansive and multifunctional freehold property
with Class C2 use, currently operating as a successful guest house.
Rarely does a commercial property of this scale, flexibility, and location
become available, making it ideal for investors, hospitality operators, care
providers, or training organisations seeking a ready-made venture with strong
development potential.
The main building is a substantial three storey Victorian
premises situated on Bondgate, one of Pontefract's key arterial routes. The
current layout includes six En- suite guest bedrooms, reception and office
area, dining room with capacity for 12 covers, a fully equipped commercial
kitchen, and laundry facilities, providing a turnkey solution for continued use
in the hospitality or care sector.
To the rear, a modern two storey building currently used as
private accommodation offers further business flexibility. This space includes
a lounge, kitchen, WC, bathroom, master bedroom with en suite, two additional
bedrooms, and a dressing room. Planning permission is in place to extend and
convert into additional studio units, increasing capacity and revenue
potential. Full floorplans are available.
The site benefits from a large rear car park and on street
parking to the front, ensuring easy access for customers, clients, or staff.
Its location is well served by public transport and just over half a mile from
Pontefract Monkhill train station, with excellent road connections to
Wakefield, Leeds, Doncaster, York, London and the wider motorway network.
Pontefract is a popular and historic market town with a
strong tourism economy, well known attractions, and a growing demand for short
stay accommodation and flexible rental solutions. The town is hom









































